WONINGTYPE 1

Geschakeld met de naastgelegen stenen woning, wordt u verrast door de inrichting. De tuin heeft naast de bosbeleving, ook een ruimte waar u zich zalig kunt terugtrekken op souterrainniveau. Bij binnenkomst ervaart u direct de aanwezige bosvrijheid.
Specificaties
- Geschakelde stenen recreatiewoning, nog 1 te koop
- Bestaande bouw, eigen grond
- Tuin rondom met terras
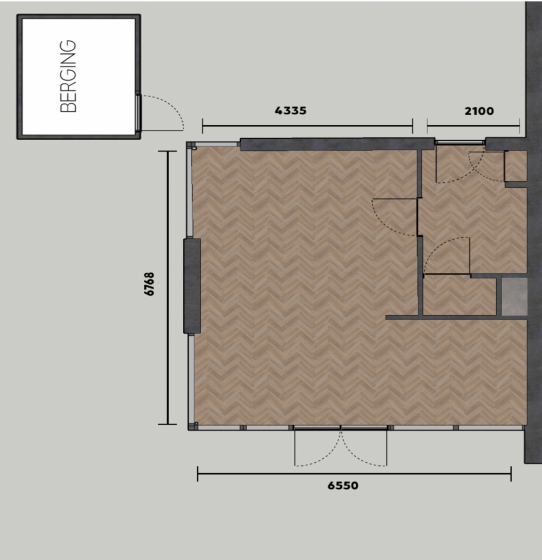
- Woonoppervlakte van 93 m²
- Eigen kavel van 700 tot 900 m²
- Verkoopprijs: € 450.000,= k.k.
- Aantal verdiepingen: 2
- Aantal slaapkamers: 2, uitbreiding naar 3 is mogelijk
- Aantal badkamers: 1, uitbreiding naar 2 is mogelijk
- Twee eigen parkeerplaats(en)
- Verhuur mogelijk, niet verplicht
- De woning wordt sleutelklaar opgeleverd (met nieuwe badkamer(s), keuken, vloer en toilet)
- Energielabel A

Impressie Type 1
Niet-Permanente bewoning
Residence Bosch-Rijck heeft een recreatiebestemming, waardoor permanente bewoning nog niet is toegestaan.